СвойДом
Загружаем для вас уют...
Загружаем для вас уют...





| Комплектации | Теплый контур | Теплый контур + отделка фасада |
|---|---|---|
Стоймость строительства | 13,450,000 ₽ | 15,600,000 ₽ |
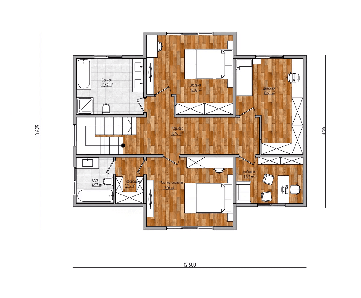
Рабочий проект Разработка рабочего проекта индивидуального жилого дома из структурно изоляционных панелей (СИП), каркас. | ✓ | ✓ |
Геодезия Проверка крайних точек участка, разбивка крайних точек свайного поля дома | ✓ | ✓ |
Фундамент Свая металлическая винтовая (толщина стенки 3,5 мм., h-2500, d-108 мм., лопасть 300 мм.). Оголовок 200х200 мм. Обработка эпоксидной эмалью в заводских условиях. Заполнение ствола сваи цементно-песчаной смесью. (возможен монтаж Железобетонные забивные сваи 150х150х3000 мм. Монтаж спецтехникой.) | ✓ | ✓ |
Монтаж винтовых металлических свай подрезка свай в уровень, заполнение цпс, монтаж оголовка, покраска сварных швов. | ✓ | ✓ |
Комплект крепежа Согласно рабочему проекту. | ✓ | ✓ |
Домокомплект СИП панели Панели (2500х1250х224 мм., 2800х1250х174 мм), OSB "Муром" 12 мм, пенополистирол "Мосстрой-31"), раскрой согласно рабочему проекту. | ✓ | ✓ |
Пиломатериал сухой строганный (антисептированный) Комплект согласно рабочему проекту. Камерной сушки влажностью до 14-16%. Сечение по ГОСТ 8486-86, 1й сорт. Приемка с влагомером. | ✓ | ✓ |
Монтаж "Домокомплекта" (Обвязка фундамента, нулевое перекрытие, стены и перегородки, чердачное перекрытие.) | ✓ | ✓ |
Кровля Металлочерепица. Возможно выполнение других видов кровли: гибкая черепица, фальцевая кровля, плоская кровля | ✓ | ✓ |
Монтажные работы по кровле в комплексе (Стропильная система, монтаж покрытия кровли, водосточной системы, подшивка свесов, утепление, устройство вентканалов и вентвыходов | ✓ | ✓ |
Окна, входные двери. Окна ПВХ КВЕ 70 профиль, 2 кам. стеклопакет (3 стекла), фурнитура Roto. Металлическая дверь с терморазрывом | ✓ | ✓ |
Монтажные работы по установке окон и дверей в комплексе. | ✓ | ✓ |
Супердиффузионная мембрана на фасад дома | ✓ | ✓ |
Фасад плитка Hauberk под кирпич (возможны различные варианты отделки фасада, фиброцементный сайдинг, декоративная штукатурка, кликфальц и др. уточняйте у менеджера) | ✕ | ✓ |
Монтажные работы по фасаду в комплексе. | ✕ | ✓ |
Устройство крыльца и террасы Согласно рабочему проекту. | ✓ | ✓ |
Монтажные работы по террасной доске или ДПК в комплексе. | ✕ | ✓ |
Заполните форму и мы свяжемся с Вами в течение 15 минут , чтобы обсудить все пожелания
